-
礼金ゼロ
西宮市|3階 2LDK|仮住まい・短期賃貸物件804130
- 礼金ゼロ
▲クリックすると「全3件」の画像が拡大できます。
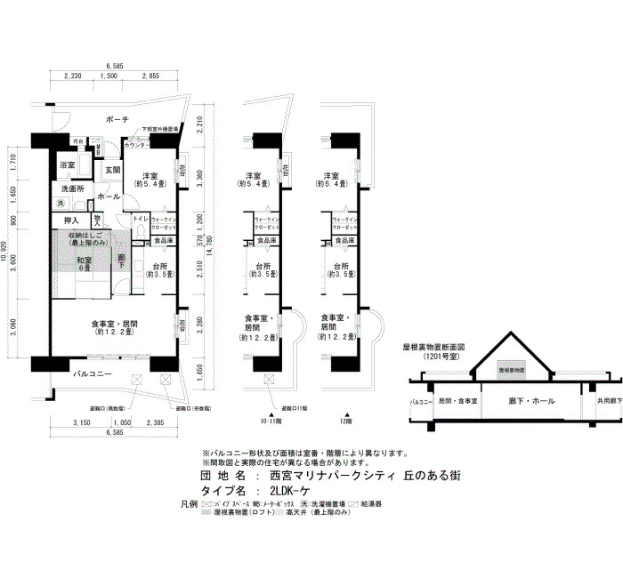
| 所在地 | 兵庫県西宮市西宮浜4丁目8番 | ||
|---|---|---|---|
| 交通 |
阪神本線
『
西宮駅
』
駅までバスで16分
バス停『マリナパーク東』
徒歩5分
JR 東海道・山陽本線 『 西宮駅 』 駅までバスで24分 バス停『西宮浜4丁目』 徒歩6分 |
||
| 月額家賃 | 78,700円 U35割 | ||
| 敷金 | 2ヶ月 | 礼金 | 0ヶ月 |
| 更新料 | 0ヶ月 | 保証金 | - |
| フリーレント | - | 共益費 | 6,400円 |
| 仲介料 | 0ヶ月 | 総戸数 | 405 戸 |
| 階数 | 3階 | 管理開始 | 27年~28年 |
| 間取り | 2LDK | 床面積 | 71㎡ |
| 駐車場 | 自走 空き台数:45台 料金:12,980円~14,300円 | ||
| 英語サイト | Nishinomiya Marina Park City Okanoaru-machi | ||
| 建物の制度・特徴・設備 |
|---|
|
|
| 部屋の制度・特徴・設備 |
|
|
0120-544-201
受付 9:30~18:00(水・日・祝日定休)
