-
礼金ゼロ
武蔵境駅徒歩13分・武蔵野市|1LDK|仮住まい・短期賃貸物件205970
- 礼金ゼロ
▲クリックすると「全8件」の画像が拡大できます。
| 所在地 | 東京都武蔵野市桜堤1-1 | ||
|---|---|---|---|
| 交通 |
JR中央線
『
武蔵境駅
』
徒歩13分
JR中央線 『 武蔵境駅 』 駅までバスで4分 バス停『境橋』 徒歩1分 西武新宿線 『 田無駅 』 駅までバスで12分 バス停『境橋』 徒歩5分 JR中央線 『 東小金井駅 』 徒歩18分 |
||
| 月額家賃 | ***** | ||
| 敷金 | ***** | 礼金 | ***** |
| 更新料 | ***** | 保証金 | ***** |
| フリーレント | ***** | 共益費 | ***** |
| 仲介料 | ***** | 総戸数 | 1120 戸 |
| 階数 | ***** | 管理開始 | 19年~25年 |
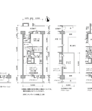
| 間取り | 1LDK | 床面積 | 50㎡ |
| 駐車場 | 平面 空き台数:39台 料金:12,870円自走 空き台数:20台 料金:12,870円~14,520円機械 空き台数:5台 料金:11,660円 | ||
| 英語サイト | Saint-Vallier Sakurazutsumi | ||
| 建物の制度・特徴・設備 |
|---|
|
|
| 部屋の制度・特徴・設備 |
|
|
0120-544-201
受付 9:30~18:00(水・日・祝日定休)
