0120-544-201

受付 9:30~18:00(水・日・祝日定休)

地図検索
はこちらから

物件検索:

  • 礼金ゼロ
入間市駅徒歩3分・入間市|3DK|仮住まい・短期賃貸物件502390

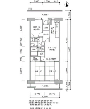
間取り画像

▲クリックすると「全3件」の画像が拡大できます。

所在地 埼玉県入間市向陽台1-1-17
交通 西武池袋線 入間市駅 徒歩3
西武池袋線 稲荷山公園駅 徒歩12
西武新宿線 狭山市駅 徒歩38
月額家賃 *****
敷金 ***** 礼金 *****
更新料 ***** 保証金 *****
フリーレント ***** 共益費 *****
仲介料 ***** 総戸数 380 戸
階数 ***** 管理開始 37年~38年
間取り 3DK 床面積 61㎡
駐車場 駐車場 空きなし
英語サイト Iruma Ekimae Plaza
建物の制度・特徴・設備
部屋の制度・特徴・設備
  • エアコン
  • ドロップインコンロ
  • 自動お湯張り機能
  • BSアンテナ
  • バス・トイレ別
  • 追焚機能
  • バルコニー
  • 網戸

仮住まいならお任せください!お問い合わせはこちらから

0120-544-201

受付 9:30~18:00(水・日・祝日定休)

簡単無料!このお部屋をWEBお問い合わせ