-
礼金ゼロ
川崎市宮前区|1階 2LDK|仮住まい・短期賃貸物件403220
- 礼金ゼロ

▲クリックすると「全8件」の画像が拡大できます。
所在地 | 神奈川県川崎市宮前区菅生ケ丘34-1 | ||
---|---|---|---|
交通 |
小田急小田原線
『
生田駅
』
駅までバスで11分
バス停『鷲ヶ峰営業所前 』
徒歩4分
東急田園都市線 『 溝の口駅 』 駅までバスで21分 バス停『碑原小学校前』 徒歩4分 東急大井町線 『 溝の口駅 』 駅までバスで21分 バス停『碑原小学校前』 徒歩4分 |
||
月額家賃 | 94,900円 | ||
敷金 | 2ヶ月 | 礼金 | 0ヶ月 |
更新料 | 0ヶ月 | 保証金 | - |
フリーレント | - | 共益費 | 7,400円 |
仲介料 | 0ヶ月 | 総戸数 | 57 戸 |
階数 | 1階 | 管理開始 | 31年 |
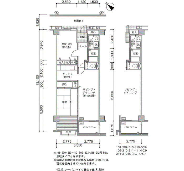
間取り | 2LDK | 床面積 | 68㎡ |
駐車場 | 機械 空き台数:16台 料金:10,010円~11,110円 | ||
英語サイト | Urban Heights Sugaogaoka |
建物の制度・特徴・設備 |
---|
|
部屋の制度・特徴・設備 |
|
0120-544-201
受付 9:30~18:00(水・日・祝日定休)