-
礼金ゼロ
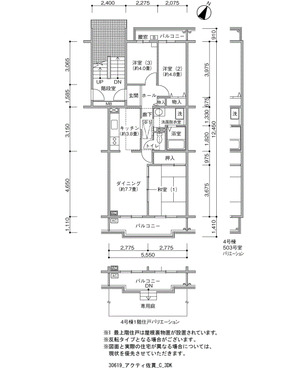
龍ケ崎市駅徒歩6分・龍ケ崎市|2階 3DK|仮住まい・短期賃貸物件306190
- 礼金ゼロ

0120-544-201
受付 9:30~18:00(水・日・祝日定休)
受付 9:30~18:00(水・日・祝日定休)
受付 9:30~18:00(水・日・祝日定休)
受付 9:30~18:00(水・日・祝日定休)