-
礼金ゼロ
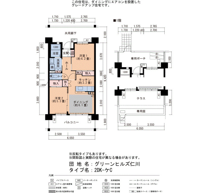
仁川駅徒歩12分・宝塚市|1階 2DK|仮住まい・短期賃貸物件805140
- 礼金ゼロ
▲クリックすると「全3件」の画像が拡大できます。
| 所在地 | 兵庫県宝塚市仁川団地1番、5番 | ||
|---|---|---|---|
| 交通 |
阪急今津線
『
仁川駅
』
徒歩12分
|
||
| 月額家賃 | 97,000円 | ||
| 敷金 | 2ヶ月 | 礼金 | 0ヶ月 |
| 更新料 | 0ヶ月 | 保証金 | - |
| フリーレント | - | 共益費 | 6,500円 |
| 仲介料 | 0ヶ月 | 総戸数 | 286 戸 |
| 階数 | 1階 | 管理開始 | 9年~14年 |
| 間取り | 2DK | 床面積 | 55㎡ |
| 駐車場 | 平面 空き台数:7台 料金:10,340円自走 空き台数:7台 料金:10,340円~11,770円 | ||
| 英語サイト | Green Hills Nigawa | ||
| 建物の制度・特徴・設備 |
|---|
|
|
| 部屋の制度・特徴・設備 |
|
|
0120-544-201
受付 9:30~18:00(水・日・祝日定休)
