-
礼金ゼロ
百合ヶ丘駅徒歩3分・川崎市麻生区|10階 2DK|仮住まい・短期賃貸物件403500
- 礼金ゼロ
▲クリックすると「全23件」の画像が拡大できます。
| 所在地 | 神奈川県川崎市麻生区百合丘1-16 | ||
|---|---|---|---|
| 交通 |
小田急小田原線
『
百合ヶ丘駅
』
徒歩3分
小田急小田原線 『 新百合ヶ丘駅 』 徒歩10分 東急田園都市線 『 あざみ野駅 』 駅までバスで41分 バス停『管理事務所前』 徒歩2分 |
||
| 月額家賃 | 125,900円 | ||
| 敷金 | 2ヶ月 | 礼金 | 0ヶ月 |
| 更新料 | 0ヶ月 | 保証金 | - |
| フリーレント | - | 共益費 | 4,400円 |
| 仲介料 | 0ヶ月 | 総戸数 | 1080 戸 |
| 階数 | 10階 | 管理開始 | 22年~29年 |
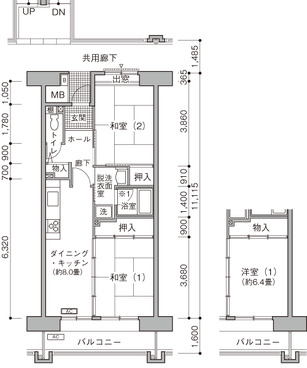
| 間取り | 2DK | 床面積 | 52㎡ |
| 駐車場 | 平面 空き台数:33台 料金:11,770円自走 空き台数:17台 料金:11,770円~13,310円機械 空き台数:11台 料金:10,560円~11,770円 | ||
| 英語サイト | Sunfre Yurigaoka | ||
| 建物の制度・特徴・設備 |
|---|
|
|
| 部屋の制度・特徴・設備 |
|
|
0120-544-201
受付 9:30~18:00(水・日・祝日定休)
