-
礼金ゼロ
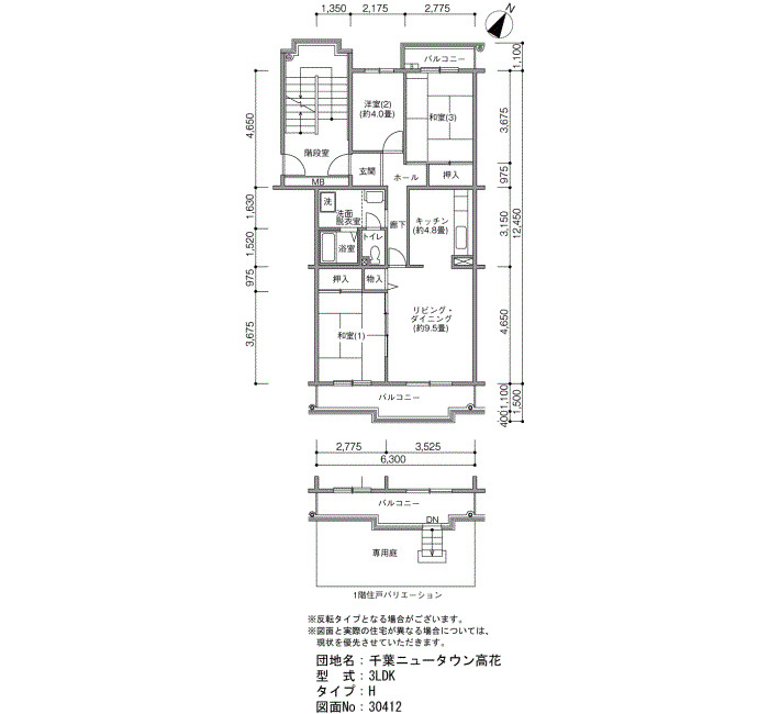
印西市|5階 3LDK|仮住まい・短期賃貸物件304120
- 礼金ゼロ
▲クリックすると「全6件」の画像が拡大できます。
| 所在地 | 千葉県印西市高花1-6 | ||
|---|---|---|---|
| 交通 |
北総線
『
千葉ニュータウン中央駅
』
駅までバスで6分
バス停『高花一丁目』
徒歩5分
北総線 『 印西牧の原駅 』 徒歩43分 |
||
| 月額家賃 | 65,900円 | ||
| 敷金 | 2ヶ月 | 礼金 | 0ヶ月 |
| 更新料 | 0ヶ月 | 保証金 | - |
| フリーレント | - | 共益費 | 4,900円 |
| 仲介料 | 0ヶ月 | 総戸数 | 345 戸 |
| 階数 | 5階 | 管理開始 | 35年~38年 |
| 間取り | 3LDK | 床面積 | 72㎡ |
| 駐車場 | 平面 空き台数:9台 料金:5,500円 | ||
| 英語サイト | Chiba New Town Takahana | ||
| 建物の制度・特徴・設備 |
|---|
|
|
| 部屋の制度・特徴・設備 |
|
|
0120-544-201
受付 9:30~18:00(水・日・祝日定休)
