-
礼金ゼロ
有松駅徒歩12分・名古屋市緑区|4階 1LDK|仮住まい・短期賃貸物件701670
- 礼金ゼロ
▲クリックすると「全20件」の画像が拡大できます。
| 所在地 | 愛知県名古屋市緑区鳴海町字尾崎山43-6 他 | ||
|---|---|---|---|
| 交通 |
名鉄名古屋本線
『
有松駅
』
徒歩12分
名鉄名古屋本線 『 有松駅 』 駅までバスで8分 バス停『鳴海団地内郵便局』 徒歩1分 名古屋市営桜通線 『 徳重駅 』 駅までバスで37分 バス停『鳴海団地内郵便局』 徒歩1分 |
||
| 月額家賃 | 77,400円 | ||
| 敷金 | 2ヶ月 | 礼金 | 0ヶ月 |
| 更新料 | 0ヶ月 | 保証金 | - |
| フリーレント | - | 共益費 | 6,800円 |
| 仲介料 | 0ヶ月 | 総戸数 | 463 戸 |
| 階数 | 4階 | 管理開始 | 17年~22年 |
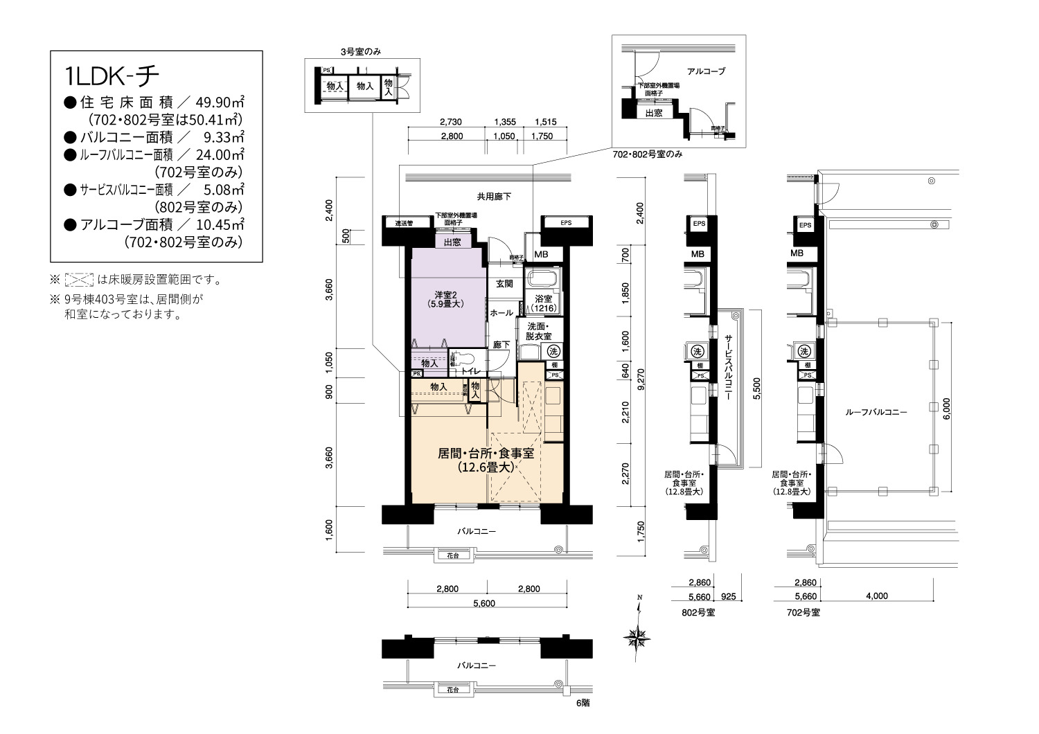
| 間取り | 1LDK | 床面積 | 49㎡ |
| 駐車場 | 平面 空き台数:22台 料金:6,930円自走 空き台数:22台 料金:6,930円~7,810円近隣駐車場のご案内・鳴海 | ||
| 英語サイト | Urban Rafre Narumi | ||
| 建物の制度・特徴・設備 |
|---|
|
|
| 部屋の制度・特徴・設備 |
|
|
0120-544-201
受付 9:30~18:00(水・日・祝日定休)
