-
礼金ゼロ
東浦和駅徒歩13分・さいたま市緑区|2DK|仮住まい・短期賃貸物件502730
- 礼金ゼロ

▲クリックすると「全3件」の画像が拡大できます。
所在地 | 埼玉県さいたま市緑区東浦和2-73-1 | ||
---|---|---|---|
交通 |
JR武蔵野線
『
東浦和駅
』
徒歩13分
JR武蔵野線 『 東浦和駅 』 駅までバスで2分 バス停『イーストシティ北』 徒歩2分 JR東北本線 『 浦和駅 』 駅までバスで14分 バス停『イーストシティ北』 徒歩7分 |
||
月額家賃 | ***** | ||
敷金 | ***** | 礼金 | ***** |
更新料 | ***** | 保証金 | ***** |
フリーレント | ***** | 共益費 | ***** |
仲介料 | ***** | 総戸数 | 140 戸 |
階数 | ***** | 管理開始 | 34年 |
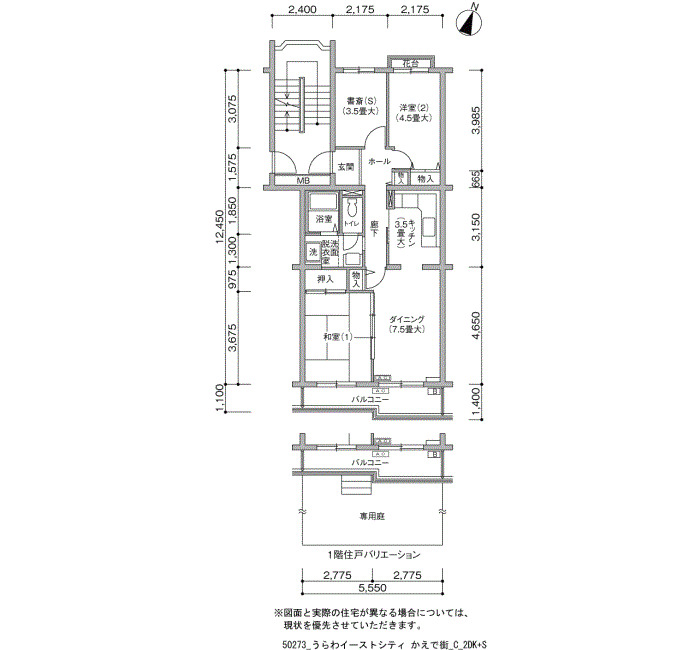
間取り | 2DK | 床面積 | 63㎡ |
駐車場 | 平面 空き台数:2台 料金:9,900円近隣駐車場のご案内・うらわイーストシティ けやき街 | ||
英語サイト | Urawa East City Kaedegai |
建物の制度・特徴・設備 |
---|
|
部屋の制度・特徴・設備 |
|
0120-544-201
受付 9:30~18:00(水・日・祝日定休)