-
礼金ゼロ
春日井市|3DK|仮住まい・短期賃貸物件700490
- 礼金ゼロ
▲クリックすると「全22件」の画像が拡大できます。
| 所在地 | 愛知県春日井市岩成台6-2-3 他 | ||
|---|---|---|---|
| 交通 |
JR中央線
『
高蔵寺駅
』
駅までバスで3分
バス停『岩成台 / 岩成台小学校』
徒歩1分
|
||
| 月額家賃 | ***** | ||
| 敷金 | ***** | 礼金 | ***** |
| 更新料 | ***** | 保証金 | ***** |
| フリーレント | ***** | 共益費 | ***** |
| 仲介料 | ***** | 総戸数 | 1293 戸 |
| 階数 | ***** | 管理開始 | 53年~54年 |
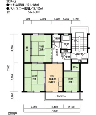
| 間取り | 3DK | 床面積 | 51㎡ |
| 駐車場 | 平面 空き台数:207台 料金:6,380円(軽専用 空き台数:3台 料金:4,840円) | ||
| 英語サイト | Iwanari-dai | ||
| 建物の制度・特徴・設備 |
|---|
|
|
| 部屋の制度・特徴・設備 |
|
|
0120-544-201
受付 9:30~18:00(水・日・祝日定休)
