-
礼金ゼロ
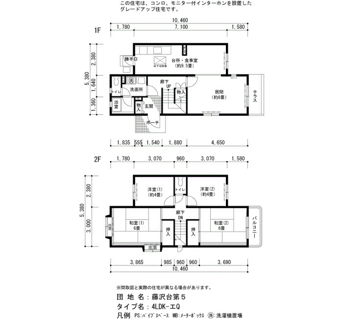
富田林市|1階 4LDK|仮住まい・短期賃貸物件803140
- 礼金ゼロ

▲クリックすると「全14件」の画像が拡大できます。
所在地 | 大阪府富田林市藤沢台二丁目2番 | ||
---|---|---|---|
交通 |
南海高野線
『
金剛駅
』
駅までバスで15分
バス停『藤沢台二丁』
徒歩1分
南海高野線 『 大阪狭山市駅 』 徒歩16分 近鉄長野線 『 富田林駅 』 駅までバスで10分 バス停『藤沢台五丁目』 徒歩1分 |
||
月額家賃 | 83,400円 | ||
敷金 | 2ヶ月 | 礼金 | 0ヶ月 |
更新料 | 0ヶ月 | 保証金 | - |
フリーレント | - | 共益費 | 5,600円 |
仲介料 | 0ヶ月 | 総戸数 | 219 戸 |
階数 | 1階 | 管理開始 | 40年 |
間取り | 4LDK | 床面積 | 98㎡ |
駐車場 | 平面 空き台数:38台 料金:9,570円近隣駐車場のご案内・藤沢台中央 | ||
英語サイト | Fujisawa-dai Dai5 |
建物の制度・特徴・設備 |
---|
|
部屋の制度・特徴・設備 |
|
0120-544-201
受付 9:30~18:00(水・日・祝日定休)