-
礼金ゼロ
小田急永山駅徒歩18分・多摩市|3階 2DK|仮住まい・短期賃貸物件204070
- 礼金ゼロ
▲クリックすると「全8件」の画像が拡大できます。
| 所在地 | 東京都多摩市聖ヶ丘1-13 | ||
|---|---|---|---|
| 交通 |
小田急多摩線
『
小田急永山駅
』
徒歩18分
京王相模原線 『 京王永山駅 』 徒歩18分 小田急多摩線 『 小田急永山駅 』 駅までバスで4分 バス停『聖ヶ丘二丁目』 徒歩2分 京王相模原線 『 京王永山駅 』 駅までバスで4分 バス停『聖ヶ丘二丁目』 徒歩2分 京王線 『 聖蹟桜ヶ丘駅 』 徒歩26分 |
||
| 月額家賃 | 90,200円 | ||
| 敷金 | 2ヶ月 | 礼金 | 0ヶ月 |
| 更新料 | 0ヶ月 | 保証金 | - |
| フリーレント | - | 共益費 | 2,600円 |
| 仲介料 | 0ヶ月 | 総戸数 | 119 戸 |
| 階数 | 3階 | 管理開始 | 38年 |
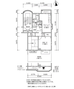
| 間取り | 2DK | 床面積 | 55㎡ |
| 駐車場 | 平面 空き台数:5台 料金:11,550円近隣駐車場のご案内・多摩ニュータウン エステート聖ヶ丘‐2 | ||
| 英語サイト | Tama New Town Maison Hijirigaoka-1 | ||
| 建物の制度・特徴・設備 |
|---|
|
|
| 部屋の制度・特徴・設備 |
|
|
0120-544-201
受付 9:30~18:00(水・日・祝日定休)
