-
礼金ゼロ
豊中市|10階 2DK|仮住まい・短期賃貸物件805000
- 礼金ゼロ
▲クリックすると「全10件」の画像が拡大できます。
| 所在地 | 大阪府豊中市東豊中町6丁目5、9、11、12番 | ||
|---|---|---|---|
| 交通 |
北大阪急行電鉄
『
桃山台駅
』
駅までバスで7分
バス停『東豊中小学校前』
徒歩3分
阪急宝塚線 『 豊中駅 』 駅までバスで10分 バス停『東豊中団地前』 徒歩2分 大阪モノレール 『 千里中央駅 』 駅までバスで13分 バス停『東豊中団地前』 徒歩2分 |
||
| 月額家賃 | 92,900円 | ||
| 敷金 | 2ヶ月 | 礼金 | 0ヶ月 |
| 更新料 | 0ヶ月 | 保証金 | - |
| フリーレント | - | 共益費 | 4,900円 |
| 仲介料 | 0ヶ月 | 総戸数 | 729 戸 |
| 階数 | 10階 | 管理開始 | 16年~21年 |
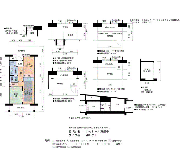
| 間取り | 2DK | 床面積 | 49㎡ |
| 駐車場 | 平面 空き台数:9台 料金:14,520円~15,950円自走 空き台数:61台 料金:14,520円~16,390円 | ||
| 英語サイト | Chaleureux Higashi Toyonaka | ||
| 建物の制度・特徴・設備 |
|---|
|
|
| 部屋の制度・特徴・設備 |
|
|
0120-544-201
受付 9:30~18:00(水・日・祝日定休)
