0120-544-201

受付 9:30~18:00(水・日・祝日定休)

地図検索
はこちらから

物件検索:

  • 礼金ゼロ
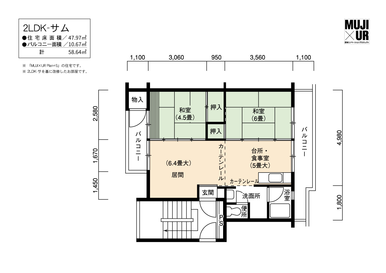
春日井市|5階 2LDK|仮住まい・短期賃貸物件700600

間取り画像

▲クリックすると「全4件」の画像が拡大できます。

所在地 愛知県春日井市中央台3-1-2 他
交通 JR中央線 高蔵寺駅 駅までバスで9 バス停『高森台』 徒歩1
月額家賃 48,300円
敷金 2ヶ月 礼金 0ヶ月
更新料 0ヶ月 保証金 -
フリーレント - 共益費 3,300円
仲介料 0ヶ月 総戸数 790 戸
階数 5階 管理開始 48年~51年
間取り 2LDK 床面積 47㎡
駐車場 平面 空き台数:80台 料金:5,720円~6,380円
英語サイト Chuo-dai
建物の制度・特徴・設備
部屋の制度・特徴・設備
  • ドロップインコンロ
  • 自動お湯張り機能
  • モニター付インターホン
  • バス・トイレ別
  • 追焚機能
  • バルコニー

仮住まいならお任せください!お問い合わせはこちらから

0120-544-201

受付 9:30~18:00(水・日・祝日定休)

簡単無料!このお部屋をWEBお問い合わせ