-
礼金ゼロ
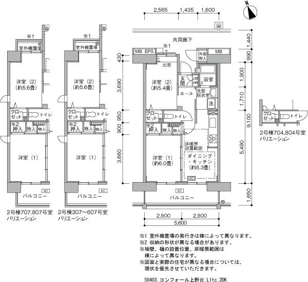
上福岡駅徒歩9分・ふじみ野市|7階 2DK|仮住まい・短期賃貸物件504030
- 礼金ゼロ

▲クリックすると「全3件」の画像が拡大できます。
0120-544-201
受付 9:30~18:00(水・日・祝日定休)
受付 9:30~18:00(水・日・祝日定休)
受付 9:30~18:00(水・日・祝日定休)
▲クリックすると「全3件」の画像が拡大できます。
受付 9:30~18:00(水・日・祝日定休)