-
礼金ゼロ
八千代緑が丘駅徒歩20分・八千代市|4階 3LDK|仮住まい・短期賃貸物件302212
- 礼金ゼロ
▲クリックすると「全9件」の画像が拡大できます。
| 所在地 | 千葉県八千代市高津934-1 | ||
|---|---|---|---|
| 交通 |
東葉高速鉄道
『
八千代緑が丘駅
』
徒歩20分
東葉高速鉄道 『 八千代中央駅 』 徒歩32分 京成本線 『 八千代台駅 』 駅までバスで7分 バス停『高津小学校』 徒歩4分 |
||
| 月額家賃 | 79,800円 | ||
| 敷金 | 2ヶ月 | 礼金 | 0ヶ月 |
| 更新料 | 0ヶ月 | 保証金 | - |
| フリーレント | - | 共益費 | 2,950円 |
| 仲介料 | 0ヶ月 | 総戸数 | 80 戸 |
| 階数 | 4階 | 管理開始 | 37年 |
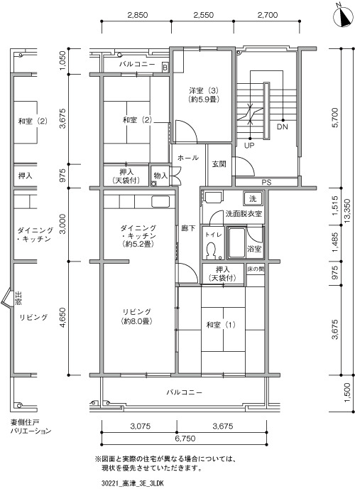
| 間取り | 3LDK | 床面積 | 79㎡ |
| 駐車場 | 平面 空き台数:174台 料金:7,920円 | ||
| 英語サイト | Green Yachiyo Midorigaoka | ||
| 建物の制度・特徴・設備 |
|---|
|
|
| 部屋の制度・特徴・設備 |
|
|
0120-544-201
受付 9:30~18:00(水・日・祝日定休)
