-
礼金ゼロ
有松駅徒歩12分・名古屋市緑区|1階 2LDK|仮住まい・短期賃貸物件701670
- 礼金ゼロ

▲クリックすると「全24件」の画像が拡大できます。
所在地 | 愛知県名古屋市緑区鳴海町字尾崎山43-6 他 | ||
---|---|---|---|
交通 |
名鉄名古屋本線
『
有松駅
』
徒歩12分
名鉄名古屋本線 『 有松駅 』 駅までバスで8分 バス停『鳴海団地内郵便局』 徒歩1分 名古屋市営桜通線 『 徳重駅 』 駅までバスで37分 バス停『鳴海団地内郵便局』 徒歩1分 |
||
月額家賃 | 94,300円 | ||
敷金 | 2ヶ月 | 礼金 | 0ヶ月 |
更新料 | 0ヶ月 | 保証金 | - |
フリーレント | - | 共益費 | 6,800円 |
仲介料 | 0ヶ月 | 総戸数 | 463 戸 |
階数 | 1階 | 管理開始 | 17年~22年 |
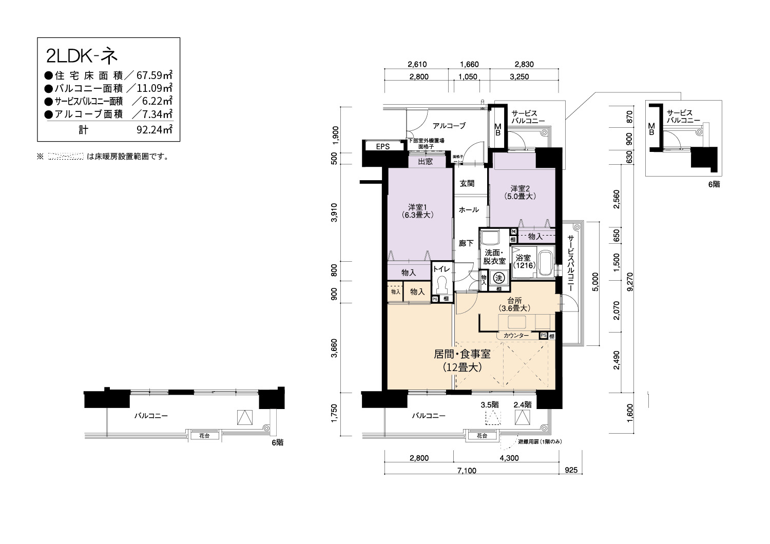
間取り | 2LDK | 床面積 | 67㎡ |
駐車場 | 平面 空き台数:11台 料金:6,930円自走 空き台数:20台 料金:6,930円~7,810円近隣駐車場のご案内・鳴海 | ||
英語サイト | Urban Rafre Narumi |
建物の制度・特徴・設備 |
---|
|
部屋の制度・特徴・設備 |
|
0120-544-201
受付 9:30~18:00(水・日・祝日定休)