0120-544-201

受付 9:30~18:00(水・日・祝日定休)

地図検索
はこちらから

物件検索:

  • 礼金ゼロ
鶴瀬駅徒歩6分・富士見市|4階 2DK|仮住まい・短期賃貸物件504100

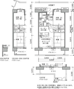
間取り画像

▲クリックすると「全3件」の画像が拡大できます。

所在地 埼玉県富士見市鶴瀬西2-3
交通 東武東上線 鶴瀬駅 徒歩6
東武東上線 みずほ台駅 徒歩24
東武東上線 ふじみ野駅 徒歩26
月額家賃 120,100円
敷金 2ヶ月 礼金 0ヶ月
更新料 0ヶ月 保証金 -
フリーレント - 共益費 4,100円
仲介料 0ヶ月 総戸数 617 戸
階数 4階 管理開始 16年
間取り 2DK 床面積 60㎡
駐車場 平面 空き台数:7台 料金:9,900円自走 空き台数:14台 料金:9,900円~11,330円
英語サイト Comfort Tsuruse
建物の制度・特徴・設備
部屋の制度・特徴・設備
  • ドロップインコンロ
  • 自動お湯張り機能
  • 独立キッチン
  • 網戸
  • エアコン
  • モニター付インターホン
  • 床暖房
  • 浴室乾燥機
  • トランクルーム
  • バス・トイレ別
  • 追焚機能
  • バルコニー

仮住まいならお任せください!お問い合わせはこちらから

0120-544-201

受付 9:30~18:00(水・日・祝日定休)

簡単無料!このお部屋をWEBお問い合わせ