-
礼金ゼロ
黒川駅徒歩13分・名古屋市北区|4階 1LDK|仮住まい・短期賃貸物件701520
- 礼金ゼロ
▲クリックすると「全7件」の画像が拡大できます。
| 所在地 | 愛知県名古屋市北区中丸町2-66 他 | ||
|---|---|---|---|
| 交通 |
名古屋市営名城線
『
黒川駅
』
徒歩13分
名古屋市営鶴舞線 『 庄内通駅 』 徒歩17分 名古屋市営名城線 『 栄駅 』 駅までバスで14分 バス停『志賀公園前』 徒歩3分 |
||
| 月額家賃 | 95,700円 | ||
| 敷金 | 2ヶ月 | 礼金 | 0ヶ月 |
| 更新料 | 0ヶ月 | 保証金 | - |
| フリーレント | - | 共益費 | 4,200円 |
| 仲介料 | 0ヶ月 | 総戸数 | 712 戸 |
| 階数 | 4階 | 管理開始 | 24年~28年 |
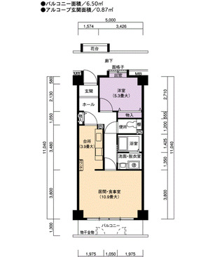
| 間取り | 1LDK | 床面積 | 54㎡ |
| 駐車場 | 平面 空き台数:1台 料金:10,560円自走 空き台数:104台 料金:10,560円~11,990円 | ||
| 英語サイト | Urbania Shiga Koen | ||
| 建物の制度・特徴・設備 |
|---|
|
|
| 部屋の制度・特徴・設備 |
|
|
0120-544-201
受付 9:30~18:00(水・日・祝日定休)
