0120-544-201

受付 9:30~18:00(水・日・祝日定休)

地図検索
はこちらから

物件検索:

  • 礼金ゼロ
桃山台駅徒歩14分・吹田市|3階 3DK|仮住まい・短期賃貸物件802870

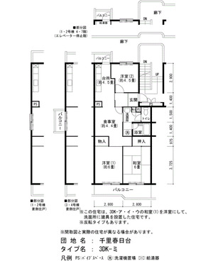
間取り画像

▲クリックすると「全3件」の画像が拡大できます。

所在地 大阪府吹田市春日四丁目11番
交通 北大阪急行電鉄 桃山台駅 徒歩14
阪急千里線 南千里駅 徒歩20
北大阪急行電鉄 緑地公園駅 徒歩19
月額家賃 77,200円
敷金 2ヶ月 礼金 0ヶ月
更新料 0ヶ月 保証金 -
フリーレント - 共益費 3,500円
仲介料 0ヶ月 総戸数 260 戸
階数 3階 管理開始 43年
間取り 3DK 床面積 66㎡
駐車場 平面 空き台数:39台 料金:13,860円~15,180円
英語サイト Senri Kasuga-dai
建物の制度・特徴・設備
部屋の制度・特徴・設備
  • インターネット(ADSL)
  • バス・トイレ別
  • バルコニー

仮住まいならお任せください!お問い合わせはこちらから

0120-544-201

受付 9:30~18:00(水・日・祝日定休)

簡単無料!このお部屋をWEBお問い合わせ