-
礼金ゼロ
豊田駅徒歩20分・日野市|14階 3DK|仮住まい・短期賃貸物件204360
- 礼金ゼロ

▲クリックすると「全5件」の画像が拡大できます。
所在地 | 東京都日野市旭が丘4-7-5 | ||
---|---|---|---|
交通 |
JR中央線
『
豊田駅
』
徒歩20分
JR中央線 『 豊田駅 』 駅までバスで7分 バス停『平山工業団地』 徒歩1分 京王線 『 長沼駅 』 徒歩26分 JR八高線 『 北八王子駅 』 徒歩23分 |
||
月額家賃 | 96,700円 | ||
敷金 | 2ヶ月 | 礼金 | 0ヶ月 |
更新料 | 0ヶ月 | 保証金 | - |
フリーレント | - | 共益費 | 2,700円 |
仲介料 | 0ヶ月 | 総戸数 | 607 戸 |
階数 | 14階 | 管理開始 | 27年~36年 |
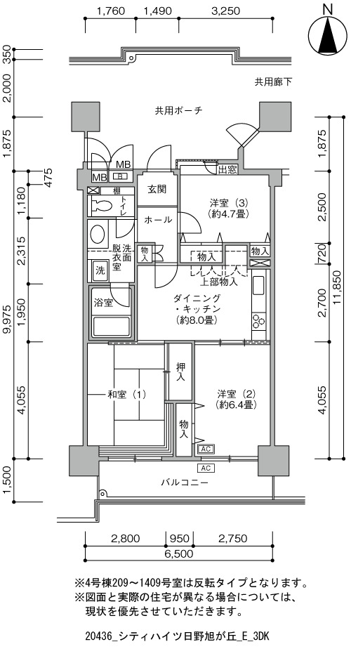
間取り | 3DK | 床面積 | 64㎡ |
駐車場 | 機械 空き台数:46台 料金:9,240円~11,660円 | ||
英語サイト | City Heights Hino Asahigaoka |
建物の制度・特徴・設備 |
---|
|
部屋の制度・特徴・設備 |
|
0120-544-201
受付 9:30~18:00(水・日・祝日定休)