-
礼金ゼロ
新浦安駅徒歩17分・浦安市|2階 3LDK|仮住まい・短期賃貸物件304180
- 礼金ゼロ

▲クリックすると「全7件」の画像が拡大できます。
所在地 | 千葉県浦安市日の出1-3 | ||
---|---|---|---|
交通 |
JR京葉線
『
新浦安駅
』
徒歩17分
JR京葉線 『 市川塩浜駅 』 徒歩40分 東京メトロ東西線 『 浦安駅 』 駅までバスで16分 バス停『明海大学前』 徒歩6分 |
||
月額家賃 | 201,900円 | ||
敷金 | 2ヶ月 | 礼金 | 0ヶ月 |
更新料 | 0ヶ月 | 保証金 | - |
フリーレント | - | 共益費 | 2,600円 |
仲介料 | 0ヶ月 | 総戸数 | 387 戸 |
階数 | 2階 | 管理開始 | 36年~37年 |
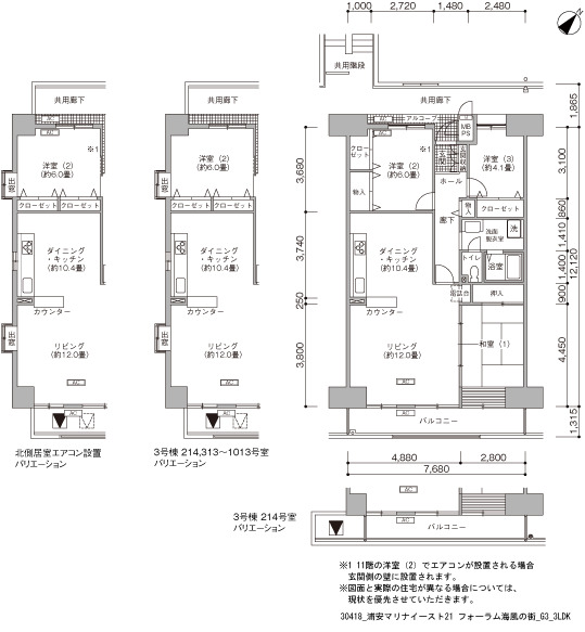
間取り | 3LDK | 床面積 | 91㎡ |
駐車場 | 平面 空き台数:66台 料金:11,660円近隣駐車場のご案内・浦安マリナイースト21海園の街・浦安マリナイースト21潮音の街・浦安マリナイースト21望海の街 | ||
英語サイト | Urayasu Marina East21 Forum Umikazeno Machi |
建物の制度・特徴・設備 |
---|
|
部屋の制度・特徴・設備 |
|
0120-544-201
受付 9:30~18:00(水・日・祝日定休)