-
礼金ゼロ
ひばりヶ丘駅徒歩15分・西東京市|3階 2DK|仮住まい・短期賃貸物件206771
- 礼金ゼロ

▲クリックすると「全8件」の画像が拡大できます。
所在地 | 東京都西東京市ひばりが丘3-5、東久留米市ひばりが丘団地6 | ||
---|---|---|---|
交通 |
西武池袋線
『
ひばりヶ丘駅
』
徒歩15分
西武池袋線 『 ひばりヶ丘駅 』 駅までバスで3分 バス停『ひばりが丘団地下』 徒歩1分 西武新宿線 『 田無駅 』 駅までバスで11分 バス停『ひばりが丘団地下』 徒歩1分 JR中央線 『 武蔵境駅 』 駅までバスで27分 バス停『ひばりが丘団地下』 徒歩1分 |
||
月額家賃 | 120,800円 | ||
敷金 | 2ヶ月 | 礼金 | 0ヶ月 |
更新料 | 0ヶ月 | 保証金 | - |
フリーレント | - | 共益費 | 7,000円 |
仲介料 | 0ヶ月 | 総戸数 | 1504 戸 |
階数 | 3階 | 管理開始 | 13年~21年 |
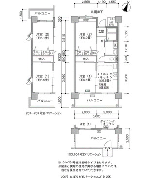
間取り | 2DK | 床面積 | 50㎡ |
駐車場 | 平面 空き台数:25台 料金:11,550円自走 空き台数:137台 料金:11,550円~12,980円 | ||
英語サイト | Hibarigaoka Park Hills |
建物の制度・特徴・設備 |
---|
|
部屋の制度・特徴・設備 |
|
0120-544-201
受付 9:30~18:00(水・日・祝日定休)