-
礼金ゼロ
南大沢駅徒歩16分・八王子市|2階 3LDK|仮住まい・短期賃貸物件206260
- 礼金ゼロ
▲クリックすると「全3件」の画像が拡大できます。
| 所在地 | 東京都八王子市別所1-38 | ||
|---|---|---|---|
| 交通 |
京王相模原線
『
南大沢駅
』
徒歩16分
京王相模原線 『 南大沢駅 』 駅までバスで9分 バス停『別所一丁目』 徒歩2分 京王相模原線 『 京王堀之内駅 』 駅までバスで5分 バス停『別所一丁目』 徒歩2分 |
||
| 月額家賃 | 134,000円 | ||
| 敷金 | 2ヶ月 | 礼金 | 0ヶ月 |
| 更新料 | 0ヶ月 | 保証金 | - |
| フリーレント | - | 共益費 | 4,900円 |
| 仲介料 | 0ヶ月 | 総戸数 | 160 戸 |
| 階数 | 2階 | 管理開始 | 24年~25年 |
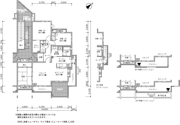
| 間取り | 3LDK | 床面積 | 96㎡ |
| 駐車場 | 機械 空き台数:20台 料金:8,580円近隣駐車場のご案内・多摩ニュータウン シティハイツ南大沢・多摩ニュータウン ベルコリーヌ南大沢・多摩ニュータウン ライブ長池 コリナス長池・多摩ニュータウン ライブ長池 長池公園せせらぎ通り南・多摩ニュータウン 南大沢絹の道一番街 | ||
| 英語サイト | Tama New Town Live Nagaike View Court Besho | ||
| 建物の制度・特徴・設備 |
|---|
|
|
| 部屋の制度・特徴・設備 |
|
|
0120-544-201
受付 9:30~18:00(水・日・祝日定休)
