-
礼金ゼロ
北鴻巣駅徒歩3分・鴻巣市|3LDK|仮住まい・短期賃貸物件502940
- 礼金ゼロ
▲クリックすると「全3件」の画像が拡大できます。
| 所在地 | 埼玉県鴻巣市赤見台1-13 | ||
|---|---|---|---|
| 交通 |
JR高崎線
『
北鴻巣駅
』
徒歩3分
JR高崎線 『 吹上駅 』 徒歩42分 JR高崎線 『 鴻巣駅 』 徒歩56分 |
||
| 月額家賃 | ***** | ||
| 敷金 | ***** | 礼金 | ***** |
| 更新料 | ***** | 保証金 | ***** |
| フリーレント | ***** | 共益費 | ***** |
| 仲介料 | ***** | 総戸数 | 166 戸 |
| 階数 | ***** | 管理開始 | 27年~33年 |
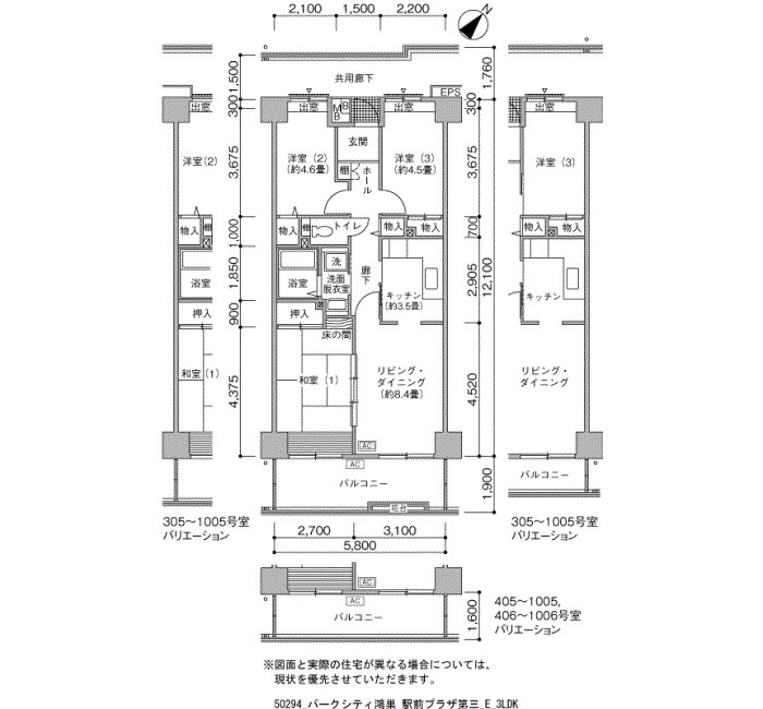
| 間取り | 3LDK | 床面積 | 67㎡ |
| 駐車場 | 平面 空き台数:1台 料金:6,160円機械 空き台数:8台 料金:5,610円~6,160円近隣駐車場のご案内・パークシティ鴻巣駅前プラザ・パークシティ鴻巣駅前プラザ第二 | ||
| 英語サイト | Park City Konosu Ekimae Plaza Dai3 | ||
| 建物の制度・特徴・設備 |
|---|
|
|
| 部屋の制度・特徴・設備 |
|
|
0120-544-201
受付 9:30~18:00(水・日・祝日定休)
