-
礼金ゼロ
能見台駅徒歩6分・横浜市金沢区|10階 2LDK|仮住まい・短期賃貸物件403890
- 礼金ゼロ
▲クリックすると「全8件」の画像が拡大できます。
| 所在地 | 神奈川県横浜市金沢区能見台東11 | ||
|---|---|---|---|
| 交通 |
京急本線
『
能見台駅
』
徒歩6分
JR京浜東北線 『 磯子駅 』 駅までバスで22分 バス停『長浜』 徒歩9分 JR根岸線 『 磯子駅 』 駅までバスで22分 バス停『長浜』 徒歩9分 京急本線 『 金沢文庫駅 』 駅までバスで4分 バス停『長浜』 徒歩7分 |
||
| 月額家賃 | 161,500円 | ||
| 敷金 | 2ヶ月 | 礼金 | 0ヶ月 |
| 更新料 | 0ヶ月 | 保証金 | - |
| フリーレント | - | 共益費 | 5,700円 |
| 仲介料 | 0ヶ月 | 総戸数 | 893 戸 |
| 階数 | 10階 | 管理開始 | 20年~26年 |
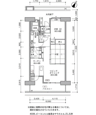
| 間取り | 2LDK | 床面積 | 70㎡ |
| 駐車場 | 平面 空き台数:5台 料金:15,400円自走 空き台数:138台 料金:15,400円~17,380円近隣駐車場のご案内・ビーコンヒル能見台イーストプラザ | ||
| 英語サイト | Beacon Hill Nokendai South Hill | ||
| 建物の制度・特徴・設備 |
|---|
|
|
| 部屋の制度・特徴・設備 |
|
|
0120-544-201
受付 9:30~18:00(水・日・祝日定休)
