-
礼金ゼロ
東山田駅徒歩17分・横浜市都筑区|3LDK|仮住まい・短期賃貸物件403080
- 礼金ゼロ
▲クリックすると「全10件」の画像が拡大できます。
| 所在地 | 神奈川県横浜市都筑区東山田4-5 | ||
|---|---|---|---|
| 交通 |
横浜市営グリーンライン
『
東山田駅
』
徒歩17分
横浜市営グリーンライン 『 北山田駅 』 徒歩19分 横浜市営グリーンライン 『 センター北駅 』 駅までバスで12分 バス停『コンフォール東山田』 徒歩4分 |
||
| 月額家賃 | ***** | ||
| 敷金 | ***** | 礼金 | ***** |
| 更新料 | ***** | 保証金 | ***** |
| フリーレント | ***** | 共益費 | ***** |
| 仲介料 | ***** | 総戸数 | 195 戸 |
| 階数 | ***** | 管理開始 | 31年 |
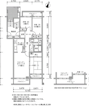
| 間取り | 3LDK | 床面積 | 72㎡ |
| 駐車場 | 機械 空き台数:5台 料金:8,910円 | ||
| 英語サイト | Kohoku New Town Comfort Higashiyamata | ||
| 建物の制度・特徴・設備 |
|---|
|
|
| 部屋の制度・特徴・設備 |
|
|
0120-544-201
受付 9:30~18:00(水・日・祝日定休)
