-
礼金ゼロ
小田急相模原駅徒歩8分・相模原市南区|4階 3LDK|仮住まい・短期賃貸物件403870
- 礼金ゼロ
▲クリックすると「全7件」の画像が拡大できます。
| 所在地 | 神奈川県相模原市南区相南1-24 | ||
|---|---|---|---|
| 交通 |
小田急小田原線
『
小田急相模原駅
』
徒歩8分
小田急江ノ島線 『 東林間駅 』 徒歩15分 小田急小田原線 『 相模大野駅 』 徒歩32分 |
||
| 月額家賃 | 141,600円 | ||
| 敷金 | 2ヶ月 | 礼金 | 0ヶ月 |
| 更新料 | 0ヶ月 | 保証金 | - |
| フリーレント | - | 共益費 | 4,400円 |
| 仲介料 | 0ヶ月 | 総戸数 | 661 戸 |
| 階数 | 4階 | 管理開始 | 22年~27年 |
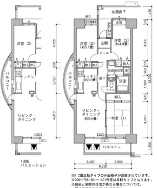
| 間取り | 3LDK | 床面積 | 75㎡ |
| 駐車場 | 平面 空き台数:5台 料金:10,560円機械 空き台数:38台 料金:9,570円~10,560円 | ||
| 英語サイト | Comfort Sagami Minami | ||
| 建物の制度・特徴・設備 |
|---|
|
|
| 部屋の制度・特徴・設備 |
|
|
0120-544-201
受付 9:30~18:00(水・日・祝日定休)
