-
礼金ゼロ
新浦安駅徒歩22分・浦安市|22階 3LDK|仮住まい・短期賃貸物件305120
- 礼金ゼロ
▲クリックすると「全22件」の画像が拡大できます。
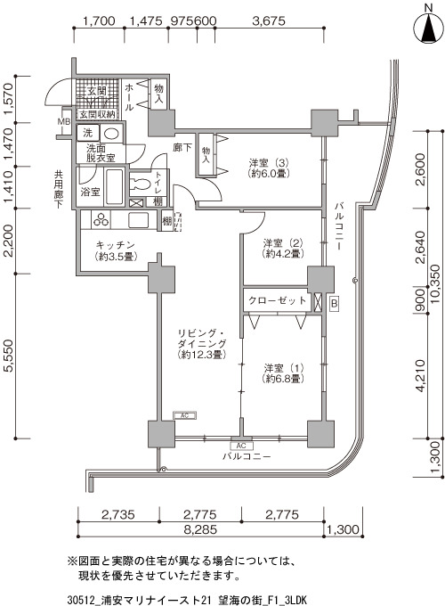
| 所在地 | 千葉県浦安市明海4-2望海の街 | ||
|---|---|---|---|
| 交通 |
JR京葉線
『
新浦安駅
』
徒歩22分
JR京葉線 『 舞浜駅 』 徒歩56分 東京メトロ東西線 『 浦安駅 』 徒歩51分 |
||
| 月額家賃 | 188,600円 | ||
| 敷金 | 2ヶ月 | 礼金 | 0ヶ月 |
| 更新料 | 0ヶ月 | 保証金 | - |
| フリーレント | - | 共益費 | 7,100円 |
| 仲介料 | 0ヶ月 | 総戸数 | 850 戸 |
| 階数 | 22階 | 管理開始 | 27年~31年 |
| 間取り | 3LDK | 床面積 | 76㎡ |
| 駐車場 | 平面 空き台数:39台 料金:11,660円近隣駐車場のご案内・浦安マリナイースト21フォーラム海風の街・浦安マリナイースト21海園の街・浦安マリナイースト21潮音の街 | ||
| 英語サイト | Urayasu Marina East21 Nozomino Machi | ||
| 建物の制度・特徴・設備 |
|---|
|
|
| 部屋の制度・特徴・設備 |
|
|
0120-544-201
受付 9:30~18:00(水・日・祝日定休)
