-
礼金ゼロ
千葉市花見川区|3階 3DK|仮住まい・短期賃貸物件302300
- 礼金ゼロ
▲クリックすると「全8件」の画像が拡大できます。
| 所在地 | 千葉県千葉市花見川区さつきが丘1 | ||
|---|---|---|---|
| 交通 |
JR総武線
『
新検見川駅
』
駅までバスで11分
バス停『さつきが丘第二』
徒歩1分
JR総武線 『 稲毛駅 』 駅までバスで20分 バス停『さつきが丘第二』 徒歩2分 京成千葉線 『 検見川駅 』 徒歩41分 |
||
| 月額家賃 | 52,400円 | ||
| 敷金 | 2ヶ月 | 礼金 | 0ヶ月 |
| 更新料 | 0ヶ月 | 保証金 | - |
| フリーレント | - | 共益費 | 2,100円 |
| 仲介料 | 0ヶ月 | 総戸数 | 2200 戸 |
| 階数 | 3階 | 管理開始 | 52年 |
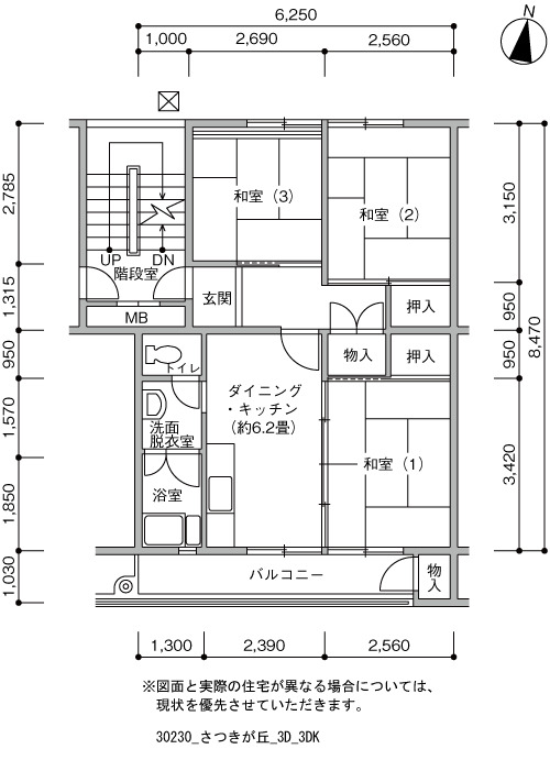
| 間取り | 3DK | 床面積 | 52㎡ |
| 駐車場 | 平面 空き台数:27台 料金:6,600円 | ||
| 英語サイト | Satsukigaoka | ||
| 建物の制度・特徴・設備 |
|---|
|
|
| 部屋の制度・特徴・設備 |
|
|
0120-544-201
受付 9:30~18:00(水・日・祝日定休)
