-
礼金ゼロ
新浦安駅徒歩25分・浦安市|4階 3LDK|仮住まい・短期賃貸物件305830
- 礼金ゼロ
▲クリックすると「全20件」の画像が拡大できます。
| 所在地 | 千葉県浦安市明海3-2海園の街 | ||
|---|---|---|---|
| 交通 |
JR京葉線
『
新浦安駅
』
徒歩25分
JR京葉線 『 舞浜駅 』 徒歩54分 東京メトロ東西線 『 浦安駅 』 徒歩54分 |
||
| 月額家賃 | 178,900円 | ||
| 敷金 | 2ヶ月 | 礼金 | 0ヶ月 |
| 更新料 | 0ヶ月 | 保証金 | - |
| フリーレント | - | 共益費 | 7,000円 |
| 仲介料 | 0ヶ月 | 総戸数 | 500 戸 |
| 階数 | 4階 | 管理開始 | 22年~26年 |
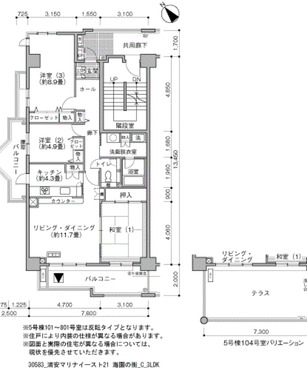
| 間取り | 3LDK | 床面積 | 94㎡ |
| 駐車場 | 平面 空き台数:15台 料金:11,660円自走 空き台数:6台 料金:11,660円近隣駐車場のご案内・浦安マリナイースト21フォーラム海風の街・浦安マリナイースト21潮音の街・浦安マリナイースト21望海の街 | ||
| 英語サイト | Urayasu Marina East 21 Kaienno Machi | ||
| 建物の制度・特徴・設備 |
|---|
|
|
| 部屋の制度・特徴・設備 |
|
|
0120-544-201
受付 9:30~18:00(水・日・祝日定休)
