-
礼金ゼロ
上福岡駅徒歩9分・ふじみ野市|4階 2DK|仮住まい・短期賃貸物件504030
- 礼金ゼロ
▲クリックすると「全3件」の画像が拡大できます。
| 所在地 | 埼玉県ふじみ野市上野台1-1 | ||
|---|---|---|---|
| 交通 |
東武東上線
『
上福岡駅
』
徒歩9分
東武東上線 『 ふじみ野駅 』 徒歩26分 東武東上線 『 新河岸駅 』 徒歩34分 |
||
| 月額家賃 | 92,100円 | ||
| 敷金 | 2ヶ月 | 礼金 | 0ヶ月 |
| 更新料 | 0ヶ月 | 保証金 | - |
| フリーレント | - | 共益費 | 3,800円 |
| 仲介料 | 0ヶ月 | 総戸数 | 1042 戸 |
| 階数 | 4階 | 管理開始 | 15年~19年 |
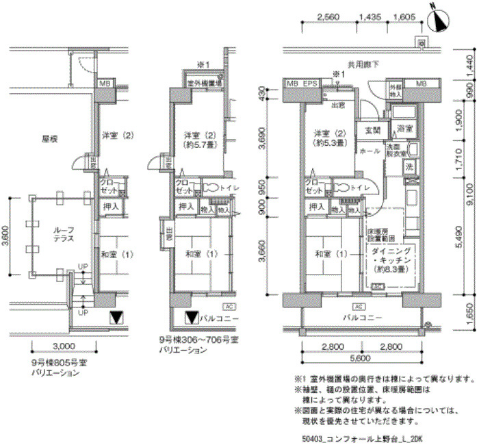
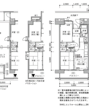
| 間取り | 2DK | 床面積 | 50㎡ |
| 駐車場 | 平面 空き台数:1台 料金:8,690円自走 空き台数:51台 料金:8,690円~9,790円バイク置き場 空き台数:1台 料金:3,300円 | ||
| 英語サイト | Comfort Uenodai | ||
| 建物の制度・特徴・設備 |
|---|
|
|
| 部屋の制度・特徴・設備 |
|
|
0120-544-201
受付 9:30~18:00(水・日・祝日定休)
