-
礼金ゼロ
春日井市|4階 1LDK|仮住まい・短期賃貸物件700710
- 礼金ゼロ
▲クリックすると「全9件」の画像が拡大できます。
| 所在地 | 愛知県春日井市岩成台8-4-1 | ||
|---|---|---|---|
| 交通 |
JR中央線
『
高蔵寺駅
』
駅までバスで4分
バス停『岩成台北 』
徒歩4分
|
||
| 月額家賃 | 49,100円 | ||
| 敷金 | 2ヶ月 | 礼金 | 0ヶ月 |
| 更新料 | 0ヶ月 | 保証金 | - |
| フリーレント | - | 共益費 | 7,900円 |
| 仲介料 | 0ヶ月 | 総戸数 | 356 戸 |
| 階数 | 4階 | 管理開始 | 48年 |
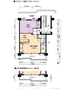
| 間取り | 1LDK | 床面積 | 45㎡ |
| 駐車場 | 平面 空き台数:41台 料金:5,390円~6,380円 | ||
| 英語サイト | Iwanari-dai Nishi | ||
| 建物の制度・特徴・設備 |
|---|
|
|
| 部屋の制度・特徴・設備 |
|
|
0120-544-201
受付 9:30~18:00(水・日・祝日定休)
