-
礼金ゼロ
柏市|5階 3DK|仮住まい・短期賃貸物件305300
- 礼金ゼロ
▲クリックすると「全8件」の画像が拡大できます。
| 所在地 | 千葉県柏市光ケ丘団地3 | ||
|---|---|---|---|
| 交通 |
JR常磐緩行線
『
南柏駅
』
駅までバスで5分
バス停『聖光ヶ丘病院』
徒歩2分
東武野田線 『 増尾駅 』 徒歩27分 東武野田線 『 新柏駅 』 徒歩22分 |
||
| 月額家賃 | 81,400円 | ||
| 敷金 | 2ヶ月 | 礼金 | 0ヶ月 |
| 更新料 | 0ヶ月 | 保証金 | - |
| フリーレント | - | 共益費 | 4,600円 |
| 仲介料 | 0ヶ月 | 総戸数 | 621 戸 |
| 階数 | 5階 | 管理開始 | 22年~30年 |
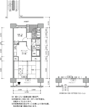
| 間取り | 3DK | 床面積 | 57㎡ |
| 駐車場 | 平面 空き台数:5台 料金:7,480円自走 空き台数:2台 料金:7,480円機械 空き台数:1台 料金:7,480円 | ||
| 英語サイト | Green Town Hikarigaoka | ||
| 建物の制度・特徴・設備 |
|---|
|
|
| 部屋の制度・特徴・設備 |
|
|
0120-544-201
受付 9:30~18:00(水・日・祝日定休)
