-
礼金ゼロ
村上駅徒歩8分・八千代市|9階 3DK|仮住まい・短期賃貸物件302730
- 礼金ゼロ
▲クリックすると「全17件」の画像が拡大できます。
| 所在地 | 千葉県八千代市村上1113-1 | ||
|---|---|---|---|
| 交通 |
東葉高速鉄道
『
村上駅
』
徒歩8分
東葉高速鉄道 『 東葉勝田台駅 』 駅までバスで6分 バス停『村上団地第二』 徒歩1分 京成本線 『 勝田台駅 』 駅までバスで6分 バス停『村上団地第二』 徒歩1分 |
||
| 月額家賃 | 69,000円 | ||
| 敷金 | 2ヶ月 | 礼金 | 0ヶ月 |
| 更新料 | 0ヶ月 | 保証金 | - |
| フリーレント | - | 共益費 | 2,400円 |
| 仲介料 | 0ヶ月 | 総戸数 | 1943 戸 |
| 階数 | 9階 | 管理開始 | 33年~49年 |
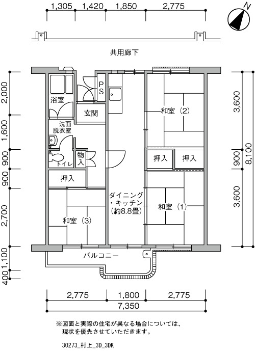
| 間取り | 3DK | 床面積 | 62㎡ |
| 駐車場 | 平面 空き台数:47台 料金:7,480円 | ||
| 英語サイト | Murakami | ||
| 建物の制度・特徴・設備 |
|---|
|
|
| 部屋の制度・特徴・設備 |
|
|
0120-544-201
受付 9:30~18:00(水・日・祝日定休)
