-
礼金ゼロ
鶴ヶ島市|2階 3LDK|仮住まい・短期賃貸物件502360
- 礼金ゼロ
▲クリックすると「全3件」の画像が拡大できます。
| 所在地 | 埼玉県鶴ヶ島市松ヶ丘4-1 | ||
|---|---|---|---|
| 交通 |
東武東上線
『
鶴ヶ島駅
』
駅までバスで3分
バス停『南公園前』
徒歩1分
東武東上線 『 鶴ヶ島駅 』 徒歩19分 JR川越線 『 笠幡駅 』 駅までバスで18分 バス停『南公園前』 徒歩8分 |
||
| 月額家賃 | 84,200円 | ||
| 敷金 | 2ヶ月 | 礼金 | 0ヶ月 |
| 更新料 | 0ヶ月 | 保証金 | - |
| フリーレント | - | 共益費 | 3,000円 |
| 仲介料 | 0ヶ月 | 総戸数 | 570 戸 |
| 階数 | 2階 | 管理開始 | 36年~38年 |
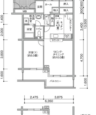
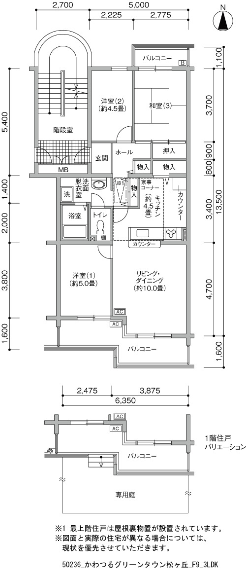
| 間取り | 3LDK | 床面積 | 75㎡ |
| 駐車場 | 平面 空き台数:15台 料金:6,600円 | ||
| 英語サイト | Kawatsuru Green Town Matsugaoka | ||
| 建物の制度・特徴・設備 |
|---|
|
|
| 部屋の制度・特徴・設備 |
|
|
0120-544-201
受付 9:30~18:00(水・日・祝日定休)
