-
礼金ゼロ
横浜市金沢区|4階 3LDK|仮住まい・短期賃貸物件402500
- 礼金ゼロ
▲クリックすると「全7件」の画像が拡大できます。
| 所在地 | 神奈川県横浜市金沢区柴町367 | ||
|---|---|---|---|
| 交通 |
京急本線
『
金沢文庫駅
』
駅までバスで10分
バス停『東柴町』
徒歩4分
金沢シーサイドライン 『 八景島駅 』 徒歩7分 金沢シーサイドライン 『 海の公園柴口駅 』 徒歩11分 |
||
| 月額家賃 | 107,000円 | ||
| 敷金 | 2ヶ月 | 礼金 | 0ヶ月 |
| 更新料 | 0ヶ月 | 保証金 | - |
| フリーレント | - | 共益費 | 3,800円 |
| 仲介料 | 0ヶ月 | 総戸数 | 90 戸 |
| 階数 | 4階 | 管理開始 | 37年 |
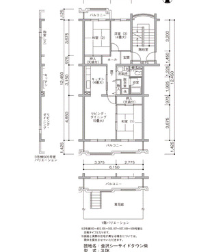
| 間取り | 3LDK | 床面積 | 70㎡ |
| 駐車場 | 駐車場 空きなし | ||
| 英語サイト | Kanazawa Seaside Town Shiba | ||
| 建物の制度・特徴・設備 |
|---|
|
|
| 部屋の制度・特徴・設備 |
|
|
0120-544-201
受付 9:30~18:00(水・日・祝日定休)
