-
礼金ゼロ
名古屋市千種区|7階 2LDK|仮住まい・短期賃貸物件700890
- 礼金ゼロ
▲クリックすると「全21件」の画像が拡大できます。
| 所在地 | 愛知県名古屋市千種区千代が丘1 | ||
|---|---|---|---|
| 交通 |
名古屋市営東山線
『
一社駅
』
駅までバスで6分
バス停『猪子石中学』
徒歩5分
名古屋市営東山線 『 池下駅 』 駅までバスで20分 バス停『光ヶ丘』 徒歩7分 名古屋市営名城線 『 自由ヶ丘駅 』 駅までバスで5分 バス停『光ヶ丘』 徒歩7分 |
||
| 月額家賃 | 63,500円 | ||
| 敷金 | 2ヶ月 | 礼金 | 0ヶ月 |
| 更新料 | 0ヶ月 | 保証金 | - |
| フリーレント | - | 共益費 | 5,500円 |
| 仲介料 | 0ヶ月 | 総戸数 | 934 戸 |
| 階数 | 7階 | 管理開始 | 45年~47年 |
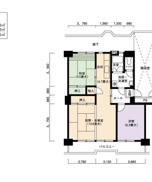
| 間取り | 2LDK | 床面積 | 63㎡ |
| 駐車場 | 平面 空き台数:59台 料金:9,680円自走 空き台数:33台 料金:9,680円~12,650円バイク置き場 空き台数:6台 料金:3,300円 | ||
| 英語サイト | Chiyogaoka | ||
| 建物の制度・特徴・設備 |
|---|
|
|
| 部屋の制度・特徴・設備 |
|
|
0120-544-201
受付 9:30~18:00(水・日・祝日定休)
