-
礼金ゼロ
横浜市旭区|2階 3K|仮住まい・短期賃貸物件401180
- 礼金ゼロ
▲クリックすると「全6件」の画像が拡大できます。
| 所在地 | 神奈川県横浜市旭区左近山16-1 | ||
|---|---|---|---|
| 交通 |
相鉄本線
『
二俣川駅
』
駅までバスで13分
バス停『左近山第4』
徒歩6分
JR横須賀線 『 東戸塚駅 』 駅までバスで25分 バス停『左近山第4』 徒歩1分 相鉄本線 『 鶴ヶ峰駅 』 駅までバスで24分 バス停『左近山第4』 徒歩1分 |
||
| 月額家賃 | 61,700円 | ||
| 敷金 | 2ヶ月 | 礼金 | 0ヶ月 |
| 更新料 | 0ヶ月 | 保証金 | - |
| フリーレント | - | 共益費 | 3,510円 |
| 仲介料 | 0ヶ月 | 総戸数 | 2101 戸 |
| 階数 | 2階 | 管理開始 | 55年~57年 |
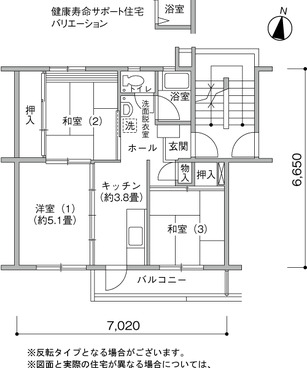
| 間取り | 3K | 床面積 | 45㎡ |
| 駐車場 | 平面 空き台数:103台 料金:7,920円機械 空き台数:2台 料金:7,150円 | ||
| 英語サイト | Sakonyama | ||
| 建物の制度・特徴・設備 |
|---|
|
|
| 部屋の制度・特徴・設備 |
|
|
0120-544-201
受付 9:30~18:00(水・日・祝日定休)
