0120-544-201

受付 9:30~18:00(水・日・祝日定休)

地図検索
はこちらから

物件検索:

  • 礼金ゼロ
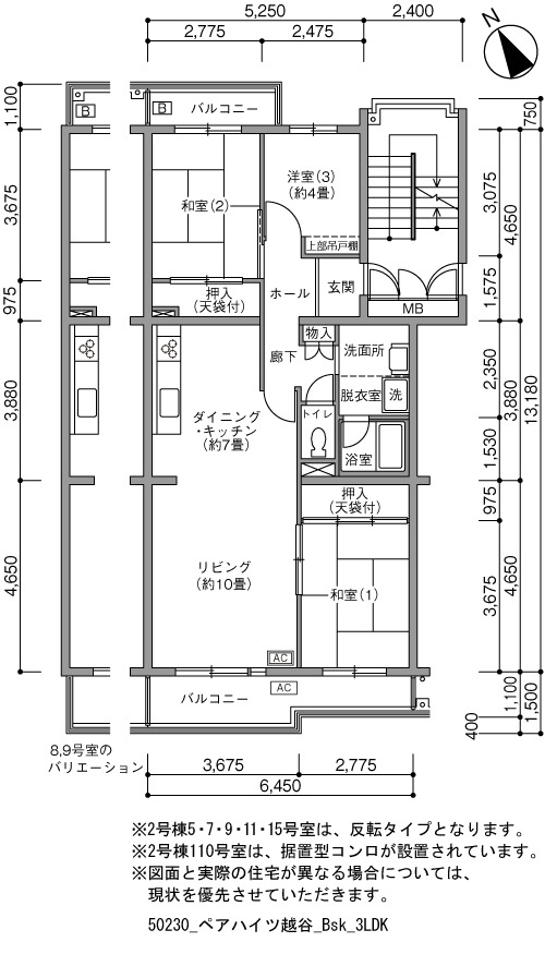
越谷駅徒歩12分・越谷市|3階 3LDK|仮住まい・短期賃貸物件502300

間取り画像

▲クリックすると「全3件」の画像が拡大できます。

所在地 埼玉県越谷市赤山町5-7-47
交通 東武伊勢崎線 越谷駅 徒歩12
東武伊勢崎線 新越谷駅 徒歩13
JR武蔵野線 南越谷駅 徒歩14
月額家賃 104,700円
敷金 2ヶ月 礼金 0ヶ月
更新料 0ヶ月 保証金 -
フリーレント - 共益費 3,100円
仲介料 0ヶ月 総戸数 156 戸
階数 3階 管理開始 39年
間取り 3LDK 床面積 79㎡
駐車場 駐車場 空きなし
英語サイト Pair Heights Koshigaya
建物の制度・特徴・設備
部屋の制度・特徴・設備
  • ドロップインコンロ
  • 自動お湯張り機能
  • 網戸
  • エアコン
  • モニター付インターホン
  • バス・トイレ別
  • 追焚機能
  • バルコニー

仮住まいならお任せください!お問い合わせはこちらから

0120-544-201

受付 9:30~18:00(水・日・祝日定休)

簡単無料!このお部屋をWEBお問い合わせ