-
礼金ゼロ
さいたま市見沼区|3階 4LDK|仮住まい・短期賃貸物件502790
- 礼金ゼロ
▲クリックすると「全3件」の画像が拡大できます。
| 所在地 | 埼玉県さいたま市見沼区春野1-6 | ||
|---|---|---|---|
| 交通 |
JR東北本線
『
東大宮駅
』
駅までバスで14分
バス停『東一番街』
徒歩1分
東武野田線 『 七里駅 』 徒歩36分 東武野田線 『 岩槻駅 』 徒歩37分 |
||
| 月額家賃 | 103,800円 | ||
| 敷金 | 2ヶ月 | 礼金 | 0ヶ月 |
| 更新料 | 0ヶ月 | 保証金 | - |
| フリーレント | - | 共益費 | 2,900円 |
| 仲介料 | 0ヶ月 | 総戸数 | 520 戸 |
| 階数 | 3階 | 管理開始 | 31年~34年 |
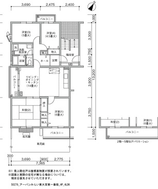
| 間取り | 4LDK | 床面積 | 87㎡ |
| 駐車場 | 平面 空き台数:8台 料金:6,050円機械 空き台数:10台 料金:5,500円~6,050円近隣駐車場のご案内・アーバンみらい東大宮 西一番街 | ||
| 英語サイト | Urban Mirai Higashi Omiya Higashi 1Bangai | ||
| 建物の制度・特徴・設備 |
|---|
|
|
| 部屋の制度・特徴・設備 |
|
|
0120-544-201
受付 9:30~18:00(水・日・祝日定休)
