-
礼金ゼロ
星川駅徒歩8分・横浜市保土ケ谷区|11階 2LDK|仮住まい・短期賃貸物件404000
- 礼金ゼロ
▲クリックすると「全9件」の画像が拡大できます。
| 所在地 | 神奈川県横浜市保土ケ谷区明神台1 | ||
|---|---|---|---|
| 交通 |
相鉄本線
『
星川駅
』
徒歩8分
相鉄本線 『 和田町駅 』 徒歩9分 JR横須賀線 『 保土ヶ谷駅 』 駅までバスで12分 バス停『明神台』 徒歩1分 JR湘南新宿ライン 『 保土ヶ谷駅 』 駅までバスで12分 バス停『明神台』 徒歩1分 |
||
| 月額家賃 | 134,700円 | ||
| 敷金 | 2ヶ月 | 礼金 | 0ヶ月 |
| 更新料 | 0ヶ月 | 保証金 | - |
| フリーレント | - | 共益費 | 5,400円 |
| 仲介料 | 0ヶ月 | 総戸数 | 1039 戸 |
| 階数 | 11階 | 管理開始 | 19年~25年 |
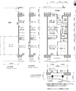
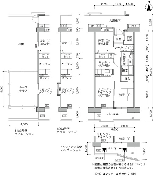
| 間取り | 2LDK | 床面積 | 59㎡ |
| 駐車場 | 平面 空き台数:44台 料金:16,390円~18,480円自走 空き台数:41台 料金:16,390円~18,480円機械 空き台数:6台 料金:14,740円~16,390円 | ||
| 英語サイト | Comfort Myojindai | ||
| 建物の制度・特徴・設備 |
|---|
|
|
| 部屋の制度・特徴・設備 |
|
|
0120-544-201
受付 9:30~18:00(水・日・祝日定休)
