-
礼金ゼロ
星ヶ丘駅徒歩10分・名古屋市名東区|2LDK|仮住まい・短期賃貸物件701510
- 礼金ゼロ
▲クリックすると「全8件」の画像が拡大できます。
| 所在地 | 愛知県名古屋市名東区にじが丘2-7 | ||
|---|---|---|---|
| 交通 |
名古屋市営東山線
『
星ヶ丘駅
』
徒歩10分
名古屋市営東山線 『 一社駅 』 徒歩17分 名古屋市営東山線 『 東山公園駅 』 徒歩22分 |
||
| 月額家賃 | ***** | ||
| 敷金 | ***** | 礼金 | ***** |
| 更新料 | ***** | 保証金 | ***** |
| フリーレント | ***** | 共益費 | ***** |
| 仲介料 | ***** | 総戸数 | 429 戸 |
| 階数 | ***** | 管理開始 | 21年~28年 |
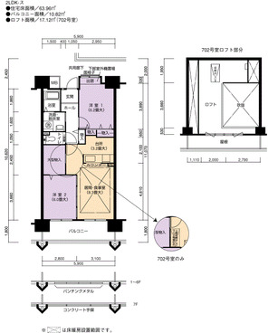
| 間取り | 2LDK | 床面積 | 63㎡ |
| 駐車場 | 自走 空き台数:30台 料金:10,120円~11,550円機械 空き台数:2台 料金:9,130円 | ||
| 英語サイト | Urban Rafre Nijigaoka Nishi | ||
| 建物の制度・特徴・設備 |
|---|
|
|
| 部屋の制度・特徴・設備 |
|
|
0120-544-201
受付 9:30~18:00(水・日・祝日定休)
