0120-544-201

受付 9:30~18:00(水・日・祝日定休)

地図検索
はこちらから

物件検索:

  • 礼金ゼロ
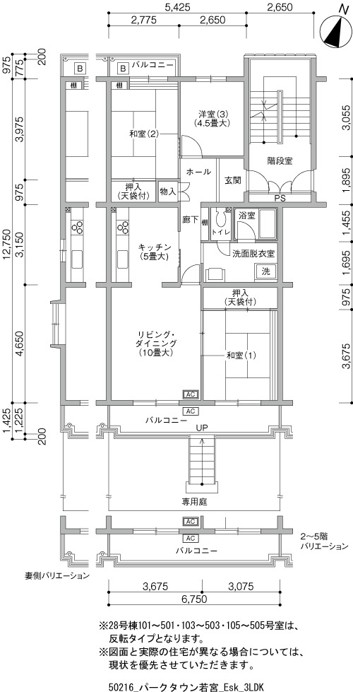
桶川駅徒歩5分・桶川市|4階 3LDK|仮住まい・短期賃貸物件502160

間取り画像

▲クリックすると「全3件」の画像が拡大できます。

所在地 埼玉県桶川市若宮1-8
交通 JR高崎線 桶川駅 徒歩5
JR高崎線 北上尾駅 徒歩28
JR高崎線 北本駅 徒歩60
月額家賃 93,500円
敷金 2ヶ月 礼金 0ヶ月
更新料 0ヶ月 保証金 -
フリーレント - 共益費 3,200円
仲介料 0ヶ月 総戸数 356 戸
階数 4階 管理開始 39年~40年
間取り 3LDK 床面積 79㎡
駐車場 平面 空き台数:28台 料金:9,460円
英語サイト Park Town Wakamiya
建物の制度・特徴・設備
部屋の制度・特徴・設備
  • ドロップインコンロ
  • 自動お湯張り機能
  • 網戸
  • エアコン
  • モニター付インターホン
  • バス・トイレ別
  • 追焚機能
  • バルコニー

仮住まいならお任せください!お問い合わせはこちらから

0120-544-201

受付 9:30~18:00(水・日・祝日定休)

簡単無料!このお部屋をWEBお問い合わせ