-
礼金ゼロ
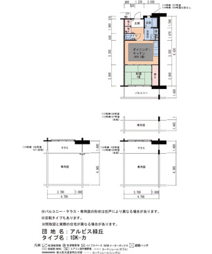
池田市|1DK|仮住まい・短期賃貸物件805060
- 礼金ゼロ
▲クリックすると「全7件」の画像が拡大できます。
| 所在地 | 大阪府池田市緑丘二丁目1番 | ||
|---|---|---|---|
| 交通 |
阪急宝塚線
『
石橋阪大前駅
』
駅までバスで8分
バス停『附属池田小学校前』
徒歩2分
阪急宝塚線 『 池田駅 』 駅までバスで11分 バス停『緑丘小学校前』 徒歩2分 阪急箕面線 『 桜井駅 』 徒歩32分 |
||
| 月額家賃 | 72,400円 | ||
| 敷金 | 2ヶ月 | 礼金 | 0ヶ月 |
| 更新料 | 0ヶ月 | 保証金 | - |
| フリーレント | - | 共益費 | 5,400円 |
| 仲介料 | 0ヶ月 | 総戸数 | 662 戸 |
| 階数 | 6階 | 管理開始 | 17年~20年 |
| 間取り | 1DK | 床面積 | 43㎡ |
| 駐車場 | 平面 空き台数:23台 料金:11,770円~12,980円 | ||
| 英語サイト | Albis Midorigaoka | ||
| 建物の制度・特徴・設備 |
|---|
|
|
| 部屋の制度・特徴・設備 |
|
|
0120-544-201
受付 9:30~18:00(水・日・祝日定休)
