-
礼金ゼロ
鶴ヶ島市|3階 3LDK|仮住まい・短期賃貸物件502100
- 礼金ゼロ
▲クリックすると「全3件」の画像が拡大できます。
| 所在地 | 埼玉県鶴ヶ島市南町2-1 | ||
|---|---|---|---|
| 交通 |
東武東上線
『
鶴ヶ島駅
』
駅までバスで4分
バス停『川鶴センター』
徒歩1分
JR川越線 『 笠幡駅 』 徒歩27分 JR川越線 『 的場駅 』 徒歩39分 |
||
| 月額家賃 | 72,700円 | ||
| 敷金 | 2ヶ月 | 礼金 | 0ヶ月 |
| 更新料 | 0ヶ月 | 保証金 | - |
| フリーレント | - | 共益費 | 2,720円 |
| 仲介料 | 0ヶ月 | 総戸数 | 309 戸 |
| 階数 | 3階 | 管理開始 | 39年~40年 |
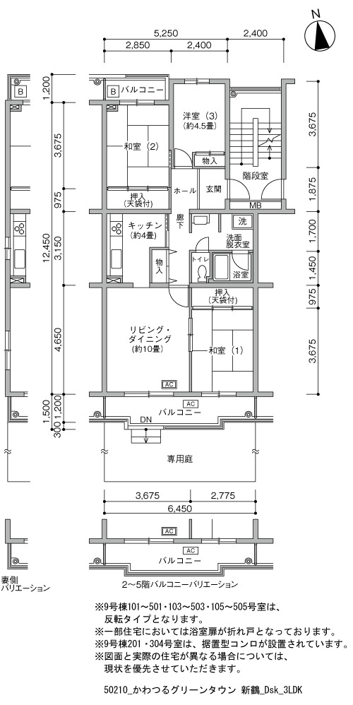
| 間取り | 3LDK | 床面積 | 83㎡ |
| 駐車場 | 平面 空き台数:8台 料金:6,600円 | ||
| 英語サイト | Kawatsuru Green Town Shintsuru | ||
| 建物の制度・特徴・設備 |
|---|
|
|
| 部屋の制度・特徴・設備 |
|
|
0120-544-201
受付 9:30~18:00(水・日・祝日定休)
