-
礼金ゼロ
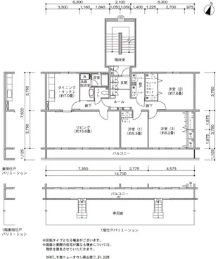
千葉ニュータウン中央駅徒歩22分・印西市|3階 3LDK|仮住まい・短期賃貸物件304370
- 礼金ゼロ
▲クリックすると「全8件」の画像が拡大できます。
| 所在地 | 千葉県印西市原山1-3 | ||
|---|---|---|---|
| 交通 |
北総線
『
千葉ニュータウン中央駅
』
徒歩22分
北総線 『 印西牧の原駅 』 徒歩53分 |
||
| 月額家賃 | 82,400円 | ||
| 敷金 | 2ヶ月 | 礼金 | 0ヶ月 |
| 更新料 | 0ヶ月 | 保証金 | - |
| フリーレント | - | 共益費 | 6,000円 |
| 仲介料 | 0ヶ月 | 総戸数 | 425 戸 |
| 階数 | 3階 | 管理開始 | 34年~36年 |
| 間取り | 3LDK | 床面積 | 109㎡ |
| 駐車場 | 平面 空き台数:7台 料金:5,720円 | ||
| 英語サイト | Chiba New Town Harayama Dai2 | ||
| 建物の制度・特徴・設備 |
|---|
|
|
| 部屋の制度・特徴・設備 |
|
|
0120-544-201
受付 9:30~18:00(水・日・祝日定休)
