-
礼金ゼロ
三郷駅徒歩17分・三郷市|1階 3LDK|仮住まい・短期賃貸物件502230
- 礼金ゼロ
▲クリックすると「全3件」の画像が拡大できます。
| 所在地 | 埼玉県三郷市早稲田7 | ||
|---|---|---|---|
| 交通 |
JR武蔵野線
『
三郷駅
』
徒歩17分
JR武蔵野線 『 三郷駅 』 駅までバスで3分 バス停『早稲田七丁目南』 徒歩1分 JR武蔵野線 『 新三郷駅 』 徒歩25分 |
||
| 月額家賃 | 93,400円 | ||
| 敷金 | 2ヶ月 | 礼金 | 0ヶ月 |
| 更新料 | 0ヶ月 | 保証金 | - |
| フリーレント | - | 共益費 | 3,300円 |
| 仲介料 | 0ヶ月 | 総戸数 | 487 戸 |
| 階数 | 1階 | 管理開始 | 39年~40年 |
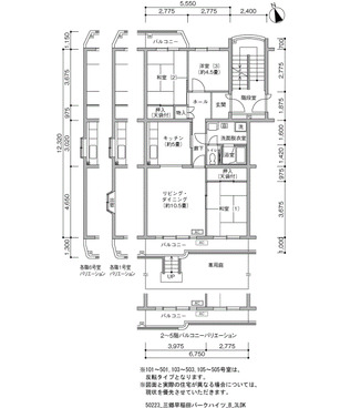
| 間取り | 3LDK | 床面積 | 77㎡ |
| 駐車場 | 平面 空き台数:5台 料金:8,250円近隣駐車場のご案内・三郷早稲田パークハイツ第二 | ||
| 英語サイト | Misato Waseda Park Heights | ||
| 建物の制度・特徴・設備 |
|---|
|
|
| 部屋の制度・特徴・設備 |
|
|
0120-544-201
受付 9:30~18:00(水・日・祝日定休)
