0120-544-201

受付 9:30~18:00(水・日・祝日定休)

地図検索
はこちらから

物件検索:

  • 礼金ゼロ
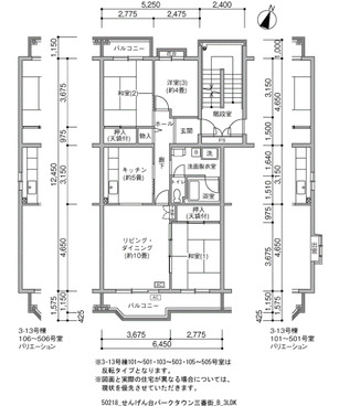
せんげん台駅徒歩10分・越谷市|4階 3LDK|仮住まい・短期賃貸物件502180

間取り画像

▲クリックすると「全8件」の画像が拡大できます。

所在地 埼玉県越谷市千間台西3-3
交通 東武伊勢崎線 せんげん台駅 徒歩10
東武伊勢崎線 大袋駅 徒歩25
東武伊勢崎線 武里駅 徒歩25
月額家賃 88,900円
敷金 2ヶ月 礼金 0ヶ月
更新料 0ヶ月 保証金 -
フリーレント - 共益費 2,490円
仲介料 0ヶ月 総戸数 395 戸
階数 4階 管理開始 39年~40年
間取り 3LDK 床面積 74㎡
駐車場 平面 空き台数:16台 料金:7,480円
英語サイト Sengendai Park Town 3Bangai
建物の制度・特徴・設備
部屋の制度・特徴・設備
  • 置き型コンロ
  • エアコン
  • 自動お湯張り機能
  • バス・トイレ別
  • バルコニー
  • 網戸
  • 追焚機能

仮住まいならお任せください!お問い合わせはこちらから

0120-544-201

受付 9:30~18:00(水・日・祝日定休)

簡単無料!このお部屋をWEBお問い合わせ